Das große Lehmziegelgebäude auf dem Gurban Tepe bildete das Zentrum des achaimenidischen Verwaltungskomplexes bei Karačamirli. Dieser Palast war ein multifunktionales Gebäude, das neben seinen repräsentativen und administrativen Aufgaben auch als Wohnsitz eines hohen persischen Würdenträgers diente.
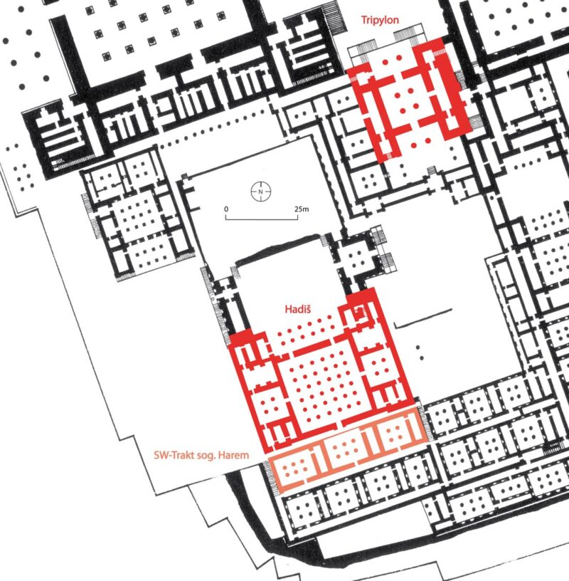
Der Grundrissplan zeigt auffällige Übereinstimmungen mit dem Wohnpalast des Xerxes in Persepolis (Hadiš).
Auch hinsichtlich seiner Abmessungen (63,00 m × 64,70 m) ist der Bau großköniglichen Palästen in Pasargadai, Persepolis und Susa vergleichbar. Trotz seines fast quadratischen Bauplans weist das große Lehmziegelgebäude eine eindeutige Ausrichtung nach Osten auf. Denn während es an den übrigen drei Seiten eine geschlossene Fassade besaß, öffnete es sich an seiner östlichen Front schon von weitem sichtbar. Hier traf der Besucher, der den ummauerten Bezirk durch das Propylon auf dem Ideal Tepe betrat und anschließend auf geradem Wege durch den Paradeisos zum Palast schritt, auf eine 26,90 m breite, von zwei Säulenreihen getragene Vorhalle. Der größte und repräsentativste Raum, die sich westlich anschließende große Audienzhalle wird nördlich und südlich von kleinteiligeren Trakten gefasst, die sie im Osten überflügeln. Abweichend vom Hadiš gibt es auf dem Gurban Tepe einen rückwärtigen Westtrakt, der durch einen Korridor abgetrennt ist. In Persepolis finden sich vergleichbare Räume im benachbarten „Harem“. Die klare Gliederung im Inneren des Gebäudes geht möglicherweise mit einer funktionalen Aufteilung der verschiedenen Raumgruppen einher.

